Warszawa | Projekty sklepów

Warszawa

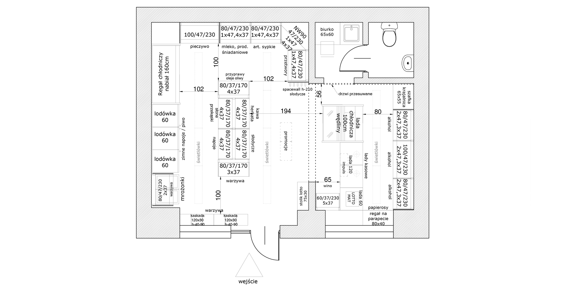
Zakres i opis projektu:

Projekt delikatesów:

  • miejsce: Warszawa
  • powierzchnia: 35 m2
  • data wykonania: luty 2015
  • Zakres opracowania:

  • Projekt technologiczny sklepu
  • Wizualizacja sklepu 3D
  • Opracowanie elementów graficznych
  • Dobór kolorystyki i materiałów
  • Projekt oklejenia wizualizacji zewnętrznej
  • Kontakt

    +48 503 700 440
    mail:
    projektowanie-sklepow.pl facebook-square-social-logo projektowanie-sklepow.pl google-plus